Car Wash Facility Design


Northeast AUTEC will provide you with:

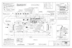
  • Full MEP design car wash construction reference drawings (non-sealed).
  • Suggested site plans and layouts.
  • Building footprint PDF files.
  • Signed and sealed drawings (engineering) for the AUTEC Car Wash Systems Glass Buildings.

AUTEC carwash equipment drawings are developed by in-house staff and are available in .dwg, .pdf and/or hard-copy format. We can work with your architectural and engineering consultants to address any questions during the permitting process. Often the consultants can leverage the AUTEC site specific carwash drawings to save you money.

pennsylvania car wash building construction
pennsylvania car wash equipment construction
pennsylvania car wash equipment building tunnel
pennsylvania car wash equipment express tunnel building drawing 3
pennsylvania car wash equipment building drawing soft touch and touch free
pennsylvania car wash equipment building express drawing
pennsylvania car wash equipment  building tunnel touch free
pennsylvania car wash equipment building tunnel
pennsylvania car wash equipment building inbay express